48 Lake Street, Avondale Heights

SOLD for $1,380,000

4 Beds 3 Baths 2 Cars 301 m2

BRAND NEW CUSTOM BUILT DESIGNER LIVING!

Perfectly positioned in the very heart of Avondale Heights, this extraordinary brand new home sets the benchmark in modern family living with its spacious and versatile double-storey design, first-class features and abundance of natural light throughout. 

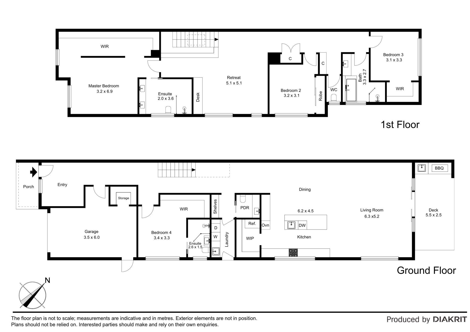
Impressive from every perspective, the home's vogue interior showcases four bedrooms (including alternate master bedrooms on each level with ensuite and fitted WIR), and equally-opulent main bathroom. 

Further emphasizing its fine family credentials is the inclusion of a secondary living area (upstairs) with dedicated study nook including cabinetry, expansive open living/dining area and gourmet kitchen with island breakfast bar, 900mm Bosch appliances (including 2 ovens & 900mm induction cooktop) and a huge butler's pantry.

Perfectly positioned in the very heart of Avondale Heights, this extraordinary brand new home sets the benchmark in modern family living with its spacious and versatile double-storey design, first-class features and abundance of natural light throughout. 

This remarkable new residence also includes a family-sized laundry, zoned heating/refrigerated cooling, high square-set ceilings, premium engineered flooring, custom stone benchtops throughout and floor-to-ceiling tiles in all three bathrooms.

Complementing the home's opulent interior is a decked alfresco entertaining area with BBQ and sizeable rear yard with lush lawn and perimeter gardens, plus the added appeal of a remote-control garage with internal entry.

A short stroll to Military Road shops & eateries, local buses, Maribyrnong River, schools and kinder/childcare facilities, as well as easy access to the Calder Freeway and Western Ring Road.

Notable inclusions :

- Keyless front door entry and a front door video bell and with a touch screen intercom.

- Multi - Zoned Heating / Air Conditioning with linear grills.

- Dual Bosch ovens and Bosch induction cooktop with a touch screen.

- Fully Integrated dishwasher

- Premium quality granite Frankie kitchen sink and mixer pull out tap.

- Premium Multi room audio ceiling speakers

- Contemporary elegant Italian tiles and fixtures in all bathrooms, with a matt finished 1700mm bathtub.

- Premium natural oak timber wardrobe and bathroom joinery

- 7.5m long His & Hers WIR in natural oak joinery

- Glass staircase balustrade with a large Vulux skylight above the stairs

- Stainless steel outdoor bbq kitchen with a 4 burner plus an in-built wok with an in-built kitchen sink.

- Premium kitchen stone with splashback stone on all kitchen walls.

- WIR pantry with an in-built fridge allowance with a water tap connection.

- Large natural light laundry with stone bench allowance for washing machine and dryer with direct outdoor access.

- Large garage with durable epoxy flake flooring with direct access to the backyard.

- Alarm system and colour touch screen keypad.

- Outdoor premium HD camera surveillance system with live motion detection alerting.

DAVID GIGLIOTTI - 0411 824 854

 

Details

Address 48 Lake Street, Avondale Heights
Price SOLD for $1,380,000
Property Type Residential
Property ID 3764
Category Townhouse
Land Area 301 m2

Share

David Gigliotti photo

David Gigliotti

+61411824854